关于我们

2024澳门免费原料网站

U型玻璃鉴赏:萨尔斯音乐艺术学院Saldus Music and Art school

2019-06-27 09:24

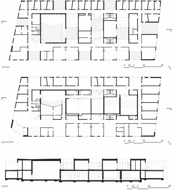
音乐和艺术学校过去一直是分开的两所学校,直到现在才被融合在一个建筑中。教室分布
在建筑外围,练习大厅和图书馆安排在中心,设置一系列日光庭院为建筑带来自然光线,
并实现两所学校之间更多的交互。绿色室内代表着音乐学校,蓝色室内代表着艺术学校。

 


音乐和艺术学校的外立面是木墙和U型玻璃共同组成的双层可呼吸式外墙系统。
集成地热采暖和热阻率高材料的使用使得室内冬天也十分温暖。外立面是木墙以及木墙外
面的U型玻璃共同组成的双层可呼吸式外墙系统。木墙的内侧是大面积的石膏内墙,为音乐
教室提供了良好的湿度环境。建筑结构和材料在完美实现功能的前提下对建筑气候进行了
被动式能源调控。此外建筑师发现在教育机构很多主要材料都彰显自己色彩和肌理的本
色,而并没有做过多的装饰。因此在这个项目中,内部的混凝土墙,透过U玻看见的木材立
面都显示出自己天然的肌理。

 


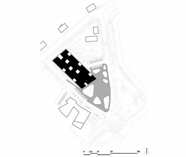
外观。停车场紧靠建筑入口。在建筑入口做了一个大挑檐。部分采光庭院沿外侧布置。 

 


冬季建筑外观。集成地热采暖和热阻率高材料的使用使得室内冬天十分温暖。 

 


外观。景观广场采用了透水铺装和轻质的室外家具。 

 


入口大厅,存包处,咖啡服务吧,通往二层的色彩渐变楼梯。
混凝土材料显示出自己的本貌。

 


楼梯和咖啡服务吧细部。导识系统经过整体设计,与建筑材料,色彩,功能等各方面协调。

 


楼梯。二层的日光庭院为交通公共空间带来采光

 


充满阳光的音乐学院公共空间。暴露的混凝土与精致光滑的果绿配色在阳光下清新明快。 

 


(左)音乐学院室内家具。(中)走廊尽头。(右)日光庭院。

 


蓝色的艺术学院。

 


(左)日光中庭为室内和公共空间带来光线。(中)音乐学院和艺术学院的混合。
(右)艺术学校更衣区域细部。各种材料,色彩简单明快的和谐共处。导识系统经过精心设计。 

 


白色调为主的中性教室。大面积石膏内墙,为音乐教室提供了良好的湿度环境。 

 


大的音乐练习厅,一侧的采光口开向内部的日光庭院。